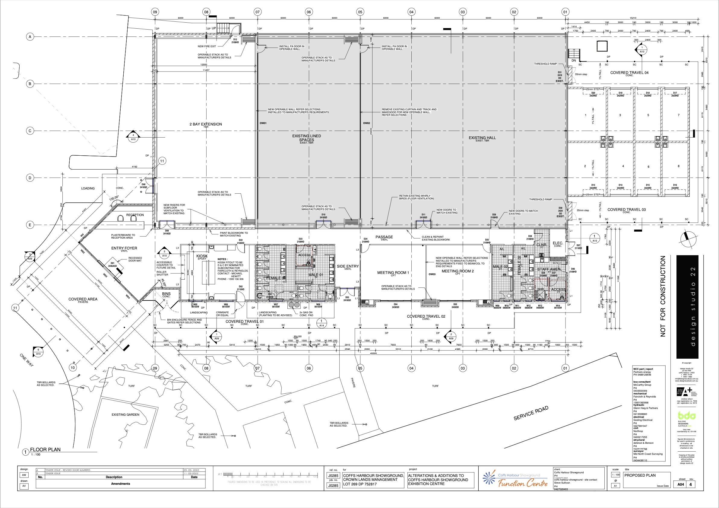
Coffs Harbour Showground Exhibition Centre
Level Projects were engaged through a tender process to carry out the extension and complete renovation of the existing showground exhibition hall. The Level Projects team has formed a close relationship with the client to ensure design, scope and budget are clearly understood and managed. The works are taking place to an existing facility, so the existing structural and aesthetic conditions were required to be investigated and replicated for the extension works. This included continual communication with consultants and client to ensure the finished product was compliant and to the client’s expectations.
The works include the following:
• Removal and replacement of Amenities to meet current compliance standards
• Extension of Hall Area x 25%.
• Addition of Main Entrance Foyer and Kitchen Area.
• Construction of Carpark including Accessible Compliant Parking
Client: Coffs Harbour Showground, Crown Lands Management Board
Address: 123 Pacific Highway, Coffs Harbour
Contract: Construct Only
Completion Date: 2024
Project value: $3-4m
Reference: “Level Projects Pty Ltd are handling our project in an extremely professional manner. Their knowledge and understanding of what is required and attention to detail is greatly appreciated. Directors Joel Paine and Mike Zucker are a pleasure to work with. Nothing is a drama. Problems are not ignored; they are worked through without fuss.”
Deb Farquhar – Chairman Coffs Harbour Showground Land Managers Board

